TransPhoto

Фотографии публикуются на сайте как есть и не имеют цели продвижения какой-либо политической и/или идеологической позиции.

Материалы предоставляются пользователями и не являются отражением мнения администрации сайта.

Закрыть
Филадельфия — Схемы
  ФиладельфияСхемы
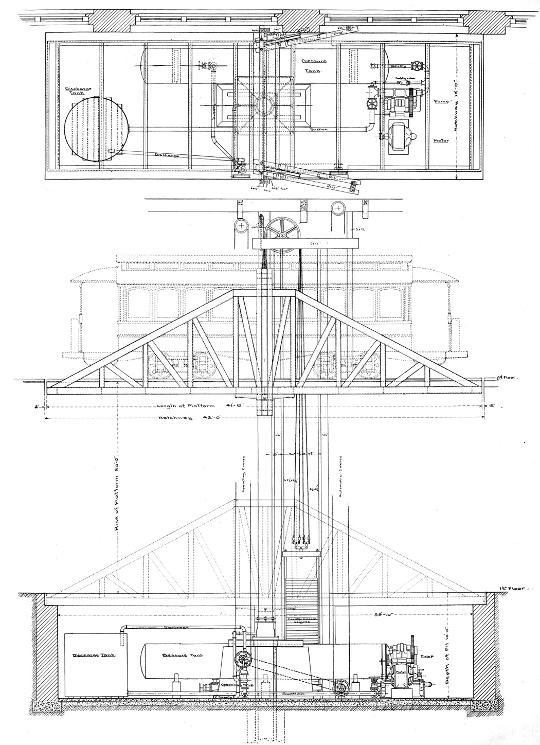
Details of the special elevator construction for the new Kensington Avenue shop building for hoisting cars to the paint shop upon second floor

Street Railway Journal, volume 24, number 10 (9/3/1904), page 316

Прислал AlexSan · Одесса           Дата: 1904 г.

Статистика

Лицензия: Общественное достояние
Опубликовано 26.12.2020 21:48 MSK
Просмотров — 247

Подробная информация

Оценка

Рейтинг: +4

Ваш комментарий

За обсуждение политики будет выноситься бан на 1 месяц и более.
Вы не вошли на сайт.
Комментарии могут оставлять только зарегистрированные пользователи.